[物件no.3374] 営業中の為、非公開
[物件no.3374]
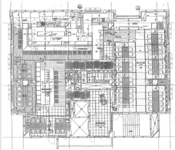
大型ワンフロアー居酒屋、譲渡物件!!インバウンド業態も相談可能です!引渡し時期は来年以降の予定です!譲渡金等お気軽にお問い合わせください!
| 所在地 | 賃料 | 共益費・管理費 | 坪単価 | 専有面積[坪] | |
|---|---|---|---|---|---|
| 札幌市中央区南4条西2丁目 | 837,760円 | 299,200円 | 7,700円 | 359.04m²[108.8坪] | ![]() |



賃料
837,760円
共益費
299,200円
坪単価
7,700 円/坪
専有面積(坪数)
359.04m²[108.8坪]
| 物件名 | 営業中の為、非公開 | 築年月 | |
|---|---|---|---|
| 住所 | 札幌市中央区南4条西2丁目 | 最寄り駅/アクセス | 札幌市営南北線すすきの駅 徒歩4分 |
| 業種 | 飲食店 | 構造 | RC |
| 階数 | 5 | 設備 | 現地要確認 |
| 保証金/敷金 | 4,569,600円 | 備考 | その他諸経費有り |
| 礼金/権利金 | 16,500,000円 | 仲介手数料概算 | 837,760円 |
| その他費用1 | 冷暖房費 239360円 | その他費用2 | |
| 大型ワンフロアー居酒屋、譲渡物件!!インバウンド業態も相談可能です!引渡し時期は来年以降の予定です!譲渡金等お気軽にお問い合わせください! | |||
株式会社店舗マネージメント
〒064-0807 札幌市中央区南7条西3丁目7-16 千両ビル4F
営業時間: 10時~19時 / 定休日:日曜・祝日・第一、第三土曜
免許番号: 北海道知事免許 石狩(4)第7539号
電話:011-562-9177 / FAX:011-533-4114