[物件no.059] 第6旭観光ビル
[物件no.059]
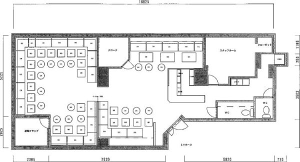
お待たせしました!希少なホストクラブOKの居抜き物件です!約40坪で賃料設定もお手頃です!内覧等お気軽にお問合せ下さい!すすきので貸店舗・賃貸店舗・居抜き店舗・リース店舗をお探しの方は是非弊社にご相談下さい!
| 所在地 | 賃料 | 共益費・管理費 | 坪単価 | 専有面積[坪] | |
|---|---|---|---|---|---|
| 札幌市中央区南6条西6丁目 | 334,400円 | 83,600円 | 8,800円 | 125.4m²[38坪] | ![]() |



賃料
334,400円
共益費
83,600円
坪単価
8,800 円/坪
専有面積(坪数)
125.4m²[38坪]
| 物件名 | 第6旭観光ビル | 築年月 | |
|---|---|---|---|
| 住所 | 札幌市中央区南6条西6丁目 | 最寄り駅/アクセス | 札幌市営南北線すすきの駅 徒歩5分 |
| 業種 | ホストクラブ、キャバクラ | 構造 | SRC |
| 階数 | 5 | 設備 | |
| 保証金/敷金 | 912,000円 | 備考 | その他諸経費有り |
| 礼金/権利金 | 仲介手数料概算 | 334,400円 | |
| その他費用1 | 冷暖房費 83600円 看板掲載費 14300円 | その他費用2 | EV費用 12540円 殺虫保守費 1650円 |
| お待たせしました!希少なホストクラブOKの居抜き物件です!約40坪で賃料設定もお手頃です!内覧等お気軽にお問合せ下さい!すすきので貸店舗・賃貸店舗・居抜き店舗・リース店舗をお探しの方は是非弊社にご相談下さい! | |||
株式会社店舗マネージメント
〒064-0807 札幌市中央区南7条西3丁目7-16 千両ビル4F
営業時間: 10時~19時 / 定休日:土日祝日
免許番号: 北海道知事免許 石狩(4)第7539号
電話:011-562-9177 / FAX:011-533-4114