[物件no.4513] ライラックビル
[物件no.4513]
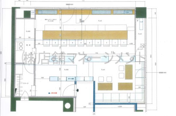
◆アクセス抜群!すすきの駅から徒歩1分◆ 貴重な広めのバー向け物件の新装店舗です!完成は3月末を予定しております! すすきのテナント探しは、店舗マネージメントにお問合せください☆
| 所在地 | 賃料 | 共益費・管理費 | 坪単価 | 専有面積[坪] | |
|---|---|---|---|---|---|
| 札幌市中央区南5条西4丁目 | 399,135円 | 66,523円 | 16,500円 | 79.98m²[24.19坪] | ![]() |

賃料
399,135円
共益費
66,523円
坪単価
16,500 円/坪
専有面積(坪数)
79.98m²[24.19坪]
| 物件名 | ライラックビル | 築年月 | 1973年8月 |
|---|---|---|---|
| 住所 | 札幌市中央区南5条西4丁目 | 最寄り駅/アクセス | 札幌市営南北線すすきの駅 徒歩160m 徒歩2分 |
| 業種 | バー、パブ、スナック | 構造 | SRC |
| 階数 | 9 | 設備 | |
| 保証金/敷金 | 2,177,100円 | 備考 | その他諸経費あり |
| 礼金/権利金 | 仲介手数料概算 | 399,135円 | |
| その他費用1 | 冷暖房費 66522円 | その他費用2 | 看板料5500円 |
| ◆アクセス抜群!すすきの駅から徒歩1分◆ 貴重な広めのバー向け物件の新装店舗です!完成は3月末を予定しております! すすきのテナント探しは、店舗マネージメントにお問合せください☆ | |||
株式会社店舗マネージメント
〒064-0807 札幌市中央区南7条西3丁目7-16 千両ビル4F
営業時間: 10時~19時 / 定休日:日曜・祝日・第一、第三土曜
免許番号: 北海道知事免許 石狩(4)第7539号
電話:011-562-9177 / FAX:011-533-4114