[物件no.847] 郵政福祉札幌第1ビル
[物件no.847]
オフィス街にある飲食店向き物件に空きがでました!!重飲食や飲食以外の業種もご相談可能!!とても人気の場所となっております!現在スケルトン状態!いちから内装を造りたい方にお勧めの物件です!是非ご検討下さい!
| 所在地 | 賃料 | 共益費・管理費 | 坪単価 | 専有面積[坪] | |
|---|---|---|---|---|---|
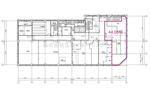
| 札幌市中央区南1条西5丁目 | 484,660円 | 円 | 11,000円 | 145.398m²[44.06坪] | ![]() |



賃料
484,660円
共益費
円
坪単価
11,000 円/坪
専有面積(坪数)
145.398m²[44.06坪]
| 物件名 | 郵政福祉札幌第1ビル | 築年月 | |
|---|---|---|---|
| 住所 | 札幌市中央区南1条西5丁目 | 最寄り駅/アクセス | 札幌市営南北線大通駅 徒歩3分 |
| 業種 | 飲食店 | 構造 | SRC |
| 階数 | B1 | 設備 | |
| 保証金/敷金 | 2,643,600円 | 備考 | その他諸経費有り |
| 礼金/権利金 | 仲介手数料概算 | 484,660円 | |
| その他費用1 | 要確認 | その他費用2 | |
| オフィス街にある飲食店向き物件に空きがでました!!重飲食や飲食以外の業種もご相談可能!!とても人気の場所となっております!現在スケルトン状態!いちから内装を造りたい方にお勧めの物件です!是非ご検討下さい! | |||
株式会社店舗マネージメント
〒064-0807 札幌市中央区南7条西3丁目7-16 千両ビル4F
営業時間: 10時~19時 / 定休日:日曜・祝日・第一、第三土曜
免許番号: 北海道知事免許 石狩(4)第7539号
電話:011-562-9177 / FAX:011-533-4114